2 этажа

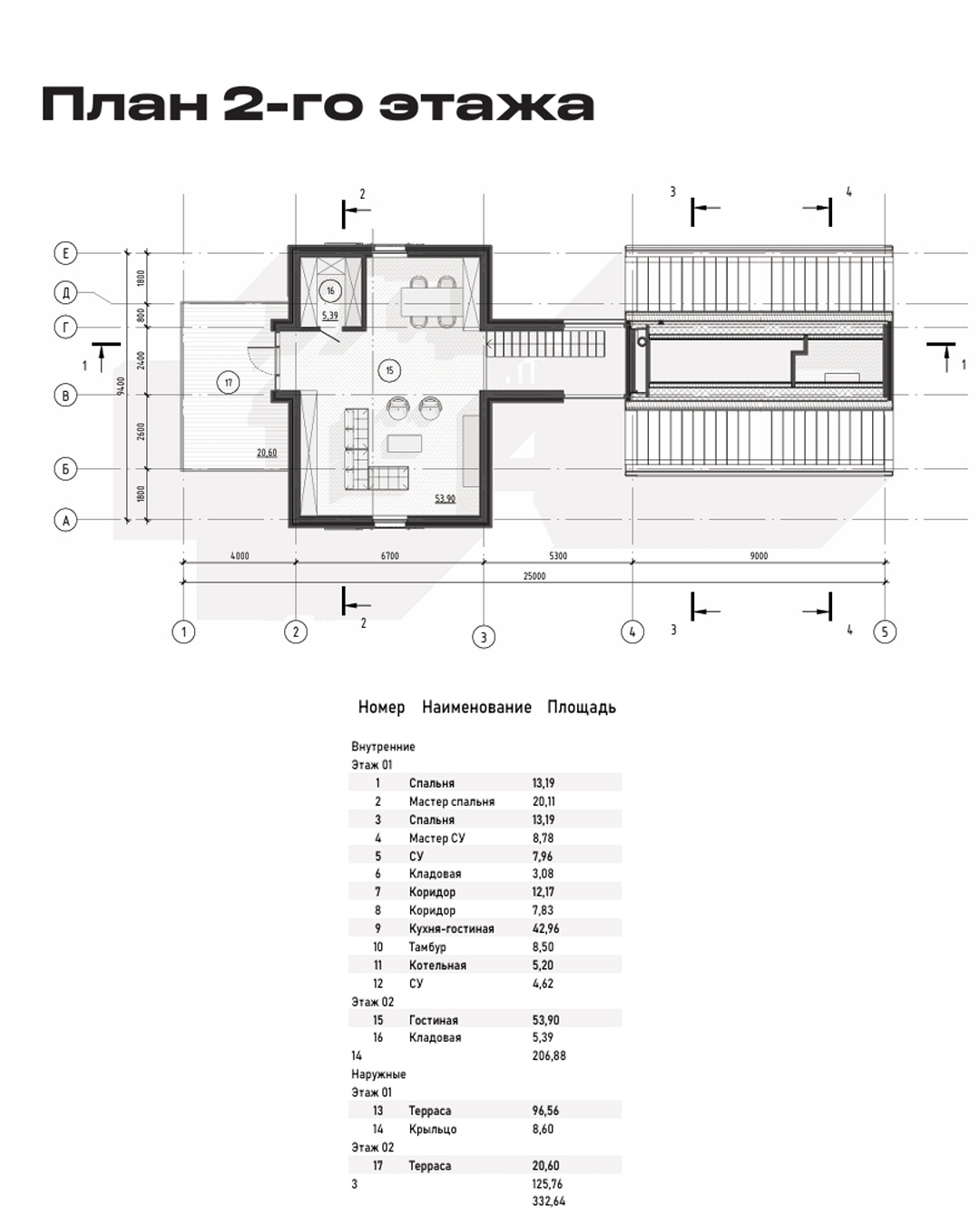
Площадь внутренних помещений: 206 м²

Площадь с террасами: 322 м²

Просторная кухня-гостиная, мастер-спальня, террасы

Каркасное строительство

Свайный или плитный фундамент (на выбор)

Материалы отделки: планкен, фальц, декоративные элементы

Usad'ba

в поле

объемы

Уникальный двухэтажный проект площадью 322 м² с продуманной планировкой и выразительной архитектурой.

типовой
проект

Сочетание чистых форм, современных решений, национальных мотивов и функционализма.

Формы и детали

стиль
и мотивы

Вдохновившись образом чистого поля, мы создали современную интерпретацию русской архитектуры, выходящую за рамки шаблонов деревенского стиля, с опорой на национальные мотивы, функциональность и актуальные архитектурные решения.

смотреть фото

Контрастный образ русской деревянной усадьбы и минималистичного барнхауса выражен в пяти объемах: дом, два материала, три панорамных витража и русская печь.